Beschrijving
In de Oosterparkwijk aan de Botterhof 28 in Harlingen staat deze modern afgewerkte hoekwoning te koop. De woning is op een mooie locatie gelegen met veel privacy en vrij uitzicht aan de zijkant en ruimte om te genieten van de buitenlucht. De woning heeft 2 percelen en beschikt zodoende over een kavel van 305 m². De woning is geheel voorzien van kunststof kozijnen met HR++ beglazing waarvan de kozijnen op de begane grond geplaatst zijn in 2024. Ook is de woning voorzien van airconditioning (2023) en 12 zonnepanelen (2023) die zorgen voor een duurzame energievoorziening. Kortom, een ideale woning voor wie op zoek is naar comfort, duurzaamheid en een mooie woonomgeving.
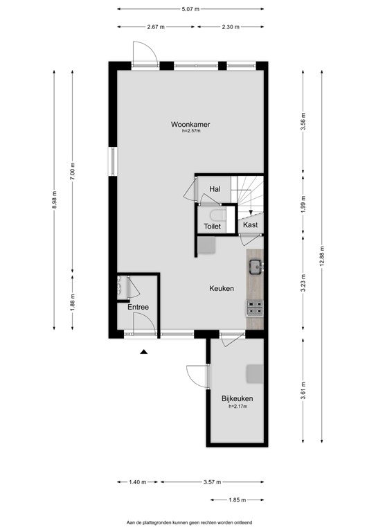
Indeling:
Begane grond: Entree, hal met meterkast, toegang tot bijkeuken, woonkamer met airco unit en openslaande deur naar de tuin, open keuken voorzien van enkele inbouw en losse apparatuur, tussenhal, toilet (wandcloset), trapopgang.
Eerste verdieping: Overloop, drie slaapkamers waarvan één met airco, badkamer met douchehoek, wastafel met meubel, toilet en witgoedopstelling.
Tweede verdieping: Overloop, vierde slaapkamer met airco unit, bergruimte en cv-ruimte.
Neem contact met ons op voor een bezichtiging!
Bijzonderheden
12 zonnepanelen 2023.
Kunststof kozijnen met HR++ beglazing Begane grond 2024 en op de verdieping 2012.
Airconditioning op begane grond en slaapkamer op 1e en 2e verdieping.
vrijstaande houten berging.
2 percelen.
Plattegronden
178535320_179_botter_begane_grond_bg_20251030_fa8ded.jpg
178535320_179_botter_eerste_verdiepi_ev_20251030_922b96.jpg
178535320_179_botter_tweede_verdiepi_tv_20251030_cefeff.jpg
178535320_179_botter_berging_br_20251030_01346c.jpg