Beschrijving

In het hart van het sfeervolle Harlingen vind je deze charmante vrijstaande woning uit 1891 aan de Vijver 3. Een unieke plek waar rust en reuring samenkomen: gelegen aan een rustig straatje, maar op loopafstand van winkels, restaurants, havens en andere voorzieningen. Deze is woning is perfect voor wie houdt van karakter, comfort en de levendigheid van het stadsleven binnen handbereik. Ideaal als starterswoning, pied-á-terre of voor iemand die klein maar fijn wil wonen.
Mis deze unieke kans niet en kom de sfeer zelf proeven. Neem contact op voor een bezichtiging!
Indeling:
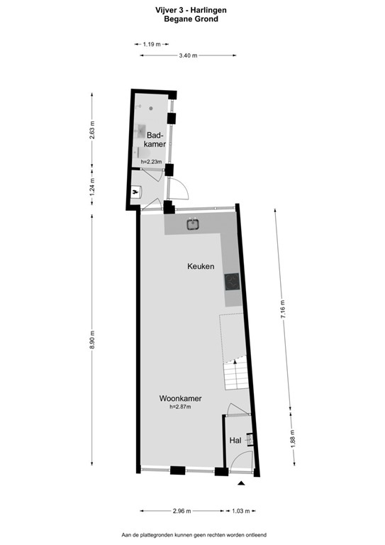
Begane grond: Entree, hal met meterkast, woonkamer, moderne open keuken uit 2023 voorzien van o.a. inductiekookplaat, afzuigkap, koelkast en vaatwasser, bijkeuken met witgoedaansluiting, cv-ruimte, badkamer met instapdouche, toilet en wastafel.
Eerste verdieping: Overloop, twee slaapkamers.
Tweede verdieping: Vliering d.m.v. losse trap bereikbaar.

Bijzonderheden

Het dakbeschot op de zolder is gedekt met asbestplaten.

Woning is gelegen in een gebied dat is aangemerkt als beschermd stadsgezicht.

Nieuwe meterkast en elektra begane grond.

Begane grond opnieuw gestuct.

Wand en plafond geïsoleerd begane grond geïsoleerd.

Kenmerken