Beschrijving
Bent u op zoek naar een veelzijdige en ruime woning? Deze grote vrijstaande woning biedt talloze mogelijkheden! Met meerdere kamers en aparte appartementen is deze woning perfect voor een combinatie van wonen en werken, verhuur appartementen of Bed & Breakfast. Ook kan de benedenverdieping als bedrijfsruimte worden ingericht.
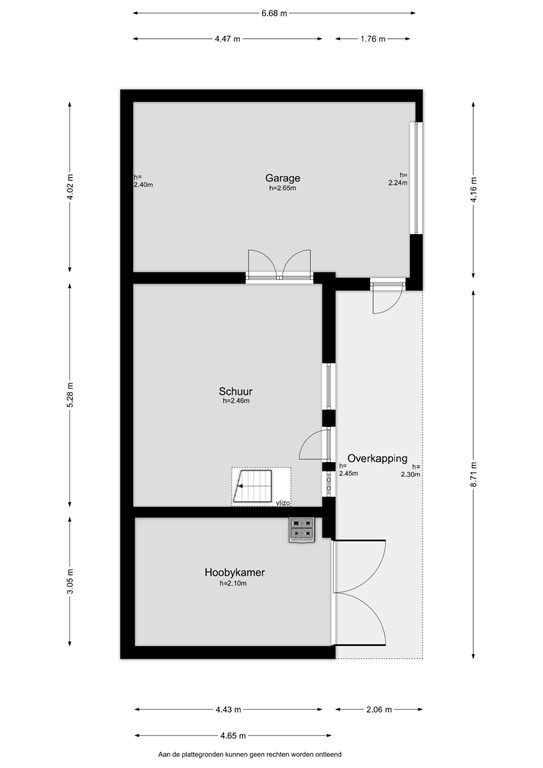
De woning beschikt aan de achterzijde over een groot terrein, inclusief een vrijstaande garage en aparte schuur voor berging. Er is volop ruimte voor diverse toepassingen, dus de mogelijkheden zijn eindeloos.
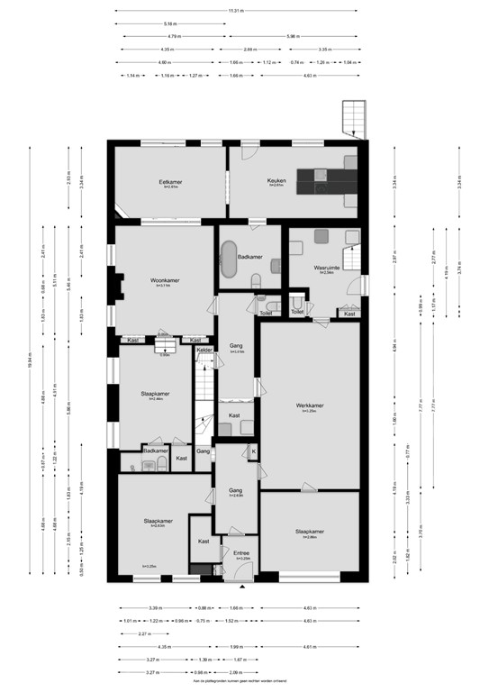
Indeling:
Begane grond: Entree, hal met meterkast, gezelschap of hobbyruimte, twee slaapkamers, toilet, witgoedruimte, cv-ruimte. woonkamer, luxe open keuken voorzien van inductie, afzuigkap, vaatwasser, oven, koelkast, nieuwe badkamer, slaapkamer.
Eerste verdieping: zes slaapkamers en een paar appartementen met eigen keuken en badkamer, en toegang dakterras.
* Veelzijdige woonopties - Riant wonen of combineren met praktijk kantoorruimte, B&B of Kangoeroewoning!
* Splitsbaar in meerdere wooneenheden.
* Ideaal voor gemengd gebruik - Geschikt voor grote gezinnen, mantelzorg met zelfstandige bewoning op begane grond.
* Ruime en luxe afwerking - Moderne woonkeuken, meerdere badkamers, dakterras en groot terrein
Voor meer informatie of een bezichtiging, neem gerust contact met ons op!
Bijzonderheden
Totaal zijn er 9 slaapkamers
Plattegronden
182772268_274_oostei_begane_grond_bg_20260306_0a047f.jpg
182772268_274_oostei_eerste_verdiepi_ev_20260306_951efb.jpg
182772268_274_oostei_garage_gr_20260306_1193e6.jpg
182772268_274_oostei_garage_zolder_gr_zl_20260306_f974cb.jpg
182772268_274_oostei_kelder_kl_20260306_14c534.jpg