| Prijs | € 298.000,- k.k. |
| Type object | Woonhuis, eengezinswoning, eind woning |
| Perceeloppervlakte | 90 m² |
| Woonoppervlakte | 81 m² |
| Aanvaarding | In overleg |
| Status | Verkocht onder voorbehoud |
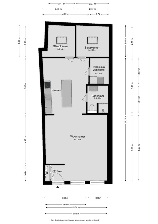
Op zoek naar een mooie eengezinswoning in het centrum van Sneek en op loopafstand van alle voorzieningen? Is ook als appartement te omschrijven! Kom dan kijken bij deze in 2021 gerealiseerde woning. Deze nette en moderne woning is op een mooie locatie gelegen en alles op één niveau waardoor het voor meerdere doelgroepen geschikt is. De woning is modern ingericht met lichte woonkamer, complete keuken en moderne badkamer. Voor de deur is er veel parkeergelegenheid. Indeling: Entree, hal met meterkast, garderobe en cv-ruimte, woonkamer, open keuken met inductie kookplaat, afzuigkap, koelkast, vrieskast, vaatwasser en oven, witgoedruimte met inloopkast, badkamer met inloopdouche, wastafel met meubel, toilet, sierradiator, twee slaapkamers. Neem snel contact met ons op voor een bezichtiging van deze unieke woning.
Aan de voorzijde wordt een stuk grond gehuurd van de gemeente voor € 70,00 per jaar. Er is een WTW unit aanwezig.
| Referentienummer | 00274 |
| Vraagprijs | € 298.000,- k.k. |
| Inrichting | Niet gestoffeerd |
| Inrichting | Niet gemeubileerd |
| Status | Verkocht onder voorbehoud |
| Aanvaarding | In overleg |
| Aangeboden sinds | Vrijdag 27 februari 2026 |
| Laatste wijziging | Donderdag 23 april 2026 |
| Type object | Woonhuis, eengezinswoning, eind woning |
| Soort bouw | Bestaande bouw |
| Toegankelijkheid | Senioren |
| Bouwperiode | 2021 |
| Dakbedekking | Bitumen |
| Type dak | Platdak |
| Isolatievormen | Dakisolatie HR-glas Muurisolatie |
| Perceeloppervlakte | 90 m² |
| Woonoppervlakte | 81 m² |
| Inhoud | 342 m³ |
| Aantal bouwlagen | 1 |
| Aantal kamers | 3 (waarvan 2 slaapkamers) |
| Aantal badkamers | 1 |
| Ligging | Dichtbij openbaar vervoer In centrum Nabij school |
| Energielabel | A |
| CV ketel | Nefit |
| Warmtebron | Gas |
| Bouwjaar | 2021 |
| Combiketel | Ja |
| Eigendom | Eigendom |
| Warm water | CV-ketel |
| Verwarmingssysteem | Centrale verwarming Warmterecuperatiesysteem |
| Kadastrale aanduiding | Sneek A 6595 |
| Perceeloppervlakte | 90 m² |
| Omvang | Geheel perceel |
| Eigendomsituatie | Eigen grond |