| Prijs | € 495.000,- k.k. |
| Type object | Woonhuis, eengezinswoning, vrijstaande woning |
| Perceeloppervlakte | 431 m² |
| Woonoppervlakte | 286 m² |
| Aanvaarding | In overleg |
| Status | Nieuw in verkoop |
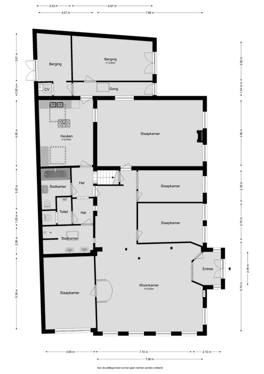
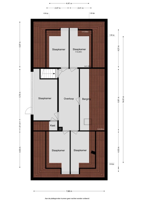
Deze royale en karakteristieke vrijstaande woning, voormalig pand "De Groene Papegaai", is gelegen op een ruim perceel van 431 m². De woning heeft 8 slaapkamers, waarvan 3 op de begane grond, 2 badkamers op de begane grond, een ruime berging en een zonnige tuin op het noordoosten. De woning is goed onderhouden en is in 2024 voorzien van kunststof kozijnen met HR ++ beglazing en geschikt voor vele doeleinden, met ruime parkeergelegenheid en bushalte op loopafstand. De woning is gelegen aan de brede doorgaande weg in Vrouwenparochie, nabij de Friese Waddenkust, op slechts een paar minuten afstand van Sint-Annaparochie, waar voldoende voorzieningen te vinden zijn. Wie uniek wil wonen, grijp hier uw kans! Indeling: Begane Grond: Entree, hal met meterkast, royale living met pelletkachel, 3 slaapkamers, gesloten keuken met 6-pits gasstel, witgoedopstelling, toilet met fontein, badkamer met jacuzzi, wastafel, toilet, badkamer met inloopdouche, dubbele wastafel, bijkeuken met cv ketel, bergruimte. Eerste verdieping: Overloop, 5 slaapkamers, bergruimte.
| Referentienummer | 00264 |
| Vraagprijs | € 495.000,- k.k. |
| Inrichting | Niet gestoffeerd |
| Inrichting | Niet gemeubileerd |
| Status | Nieuw in verkoop |
| Aanvaarding | In overleg |
| Aangeboden sinds | Woensdag 3 december 2025 |
| Type object | Woonhuis, eengezinswoning, vrijstaande woning |
| Soort bouw | Bestaande bouw |
| Bouwperiode | 1800 |
| Dakbedekking | Dakpannen |
| Type dak | Schilddak |
| Isolatievormen | HR-glas Muurisolatie |
| Perceeloppervlakte | 431 m² |
| Woonoppervlakte | 286 m² |
| Inhoud | 1.247 m³ |
| Oppervlakte overige inpandige ruimten | 38 m² |
| Aantal bouwlagen | 2 |
| Aantal kamers | 6 (waarvan 5 slaapkamers) |
| Aantal badkamers | 1 |
| Ligging | Aan drukke weg Dichtbij openbaar vervoer |
| Energielabel | G |
| CV ketel | Remeha |
| Warmtebron | Gas |
| Bouwjaar | 2009 |
| Eigendom | Eigendom |
| Warm water | CV-ketel |
| Verwarmingssysteem | Centrale verwarming Pelletkachel |
| Kadastrale aanduiding | Lieve Vrouwe Parochie C 1691 |
| Perceeloppervlakte | 431 m² |
| Omvang | Geheel perceel |
| Eigendomsituatie | Eigen grond |