Verkocht onder voorbehoud: Frederik Hendrikstraat 55, 8606 EH Sneek
€ 249.000,- k.k.
| Type object | Woonhuis, eengezinswoning, tussenwoning |
|---|---|
| Woonoppervlakte | 80 m² |
| Status | Verkocht onder voorbehoud |
| Perceeloppervlakte | 117 m² |
|---|---|
| Aanvaarding | In overleg |
Beschrijving
Ben je op zoek naar een fijne starterswoning of een ideale gezinswoning op een rustige en centrale locatie in Sneek? Dan is deze tussenwoning aan de Frederik Hendrikstraat 55 zeker een bezichtiging waard! Gelegen in woonwijk het "Sperkhem"dichtbij scholen, speeltuin, sportvoorzieningen en winkels. De woning is voorzien van kunststof kozijnen met HR ++ beglazing en heeft ook kunststof gevel bekleding. De keuken is standaard met een close in boiler voor direct warm water en ook de badkamer is eenvoudig maar functioneel afgewerkt. De woning is ideaal voor wie een nette basis zoekt om verder naar wens te moderniseren.
Indeling:
Begane grond: Entree, hal met meterkast, trapopgang, woonkamer, open keuken, bijkeuken met witgoedaansluiting, toilet.
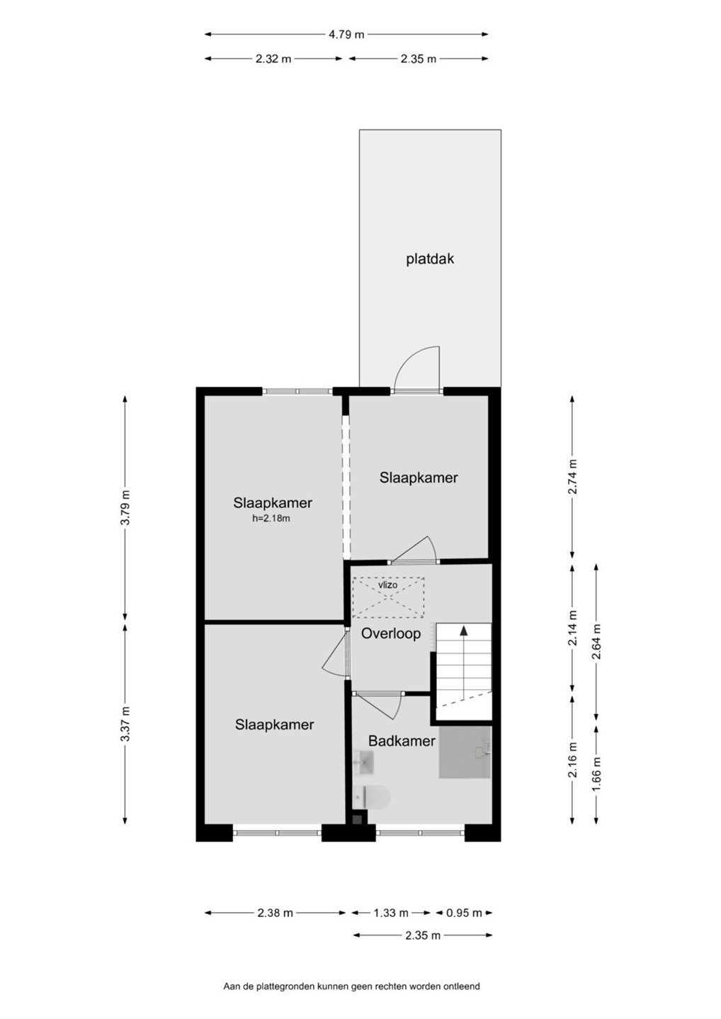
Eerste verdieping: Overloop, twee slaapkamers, badkamer met douchehoek, toilet, wastafel.
Tweede verdieping: Ruime bergzolder met cv-ruimte en via vlizotrap bereikbaar.
Indeling:
Begane grond: Entree, hal met meterkast, trapopgang, woonkamer, open keuken, bijkeuken met witgoedaansluiting, toilet.
Eerste verdieping: Overloop, twee slaapkamers, badkamer met douchehoek, toilet, wastafel.
Tweede verdieping: Ruime bergzolder met cv-ruimte en via vlizotrap bereikbaar.
Kenmerken
| Overdracht | |
|---|---|
| Referentienummer | 00271 |
| Vraagprijs | € 249.000,- k.k. |
| Status | Verkocht onder voorbehoud |
| Aanvaarding | In overleg |
| Aangeboden sinds | Maandag 8 december 2025 |
| Laatste wijziging | Maandag 16 februari 2026 |
| Bouw | |
|---|---|
| Type object | Woonhuis, eengezinswoning, tussenwoning |
| Soort bouw | Bestaande bouw |
| Bouwperiode | 1931 |
| Dakbedekking | Dakpannen |
| Type dak | Zadeldak |
| Isolatievormen | HR-glas Muurisolatie |
| Oppervlaktes en inhoud | |
|---|---|
| Perceeloppervlakte | 117 m² |
| Woonoppervlakte | 80 m² |
| Inhoud | 316 m³ |
| Oppervlakte overige inpandige ruimten | 12 m² |
| Indeling | |
|---|---|
| Aantal bouwlagen | 2 |
| Aantal kamers | 3 (waarvan 2 slaapkamers) |
| Aantal badkamers | 1 |
| Locatie | |
|---|---|
| Ligging | In woonwijk Nabij school Nabij snelweg |
| Energieverbruik | |
|---|---|
| Energielabel | D |
| CV ketel | |
|---|---|
| CV ketel | Vaillant |
| Warmtebron | Gas |
| Bouwjaar | 2014 |
| Combiketel | Ja |
| Eigendom | Huur |
| Uitrusting | |
|---|---|
| Warm water | CV-ketel |
| Verwarmingssysteem | Centrale verwarming |
| Ventilatie methode | Natuurlijke ventilatie |
| Badkamervoorzieningen | Douche Toilet Wastafel |
| Kadastrale gegevens | |
|---|---|
| Kadastrale aanduiding | Sneek C 3026 |
| Perceeloppervlakte | 117 m² |
| Omvang | Geheel perceel |
| Eigendomsituatie | Eigen grond |
Social
Vind ons leuk op Facebook
LinkedIn webpagina