Te koop: Doniaweg 6, 8742 KS Burgwerd
€ 295.000,- k.k.
| Type object | Woonhuis, eengezinswoning, geschakelde woning |
|---|---|
| Woonoppervlakte | 135 m² |
| Perceeloppervlakte | 107 m² |
|---|---|
| Aanvaarding | In overleg |
Beschrijving
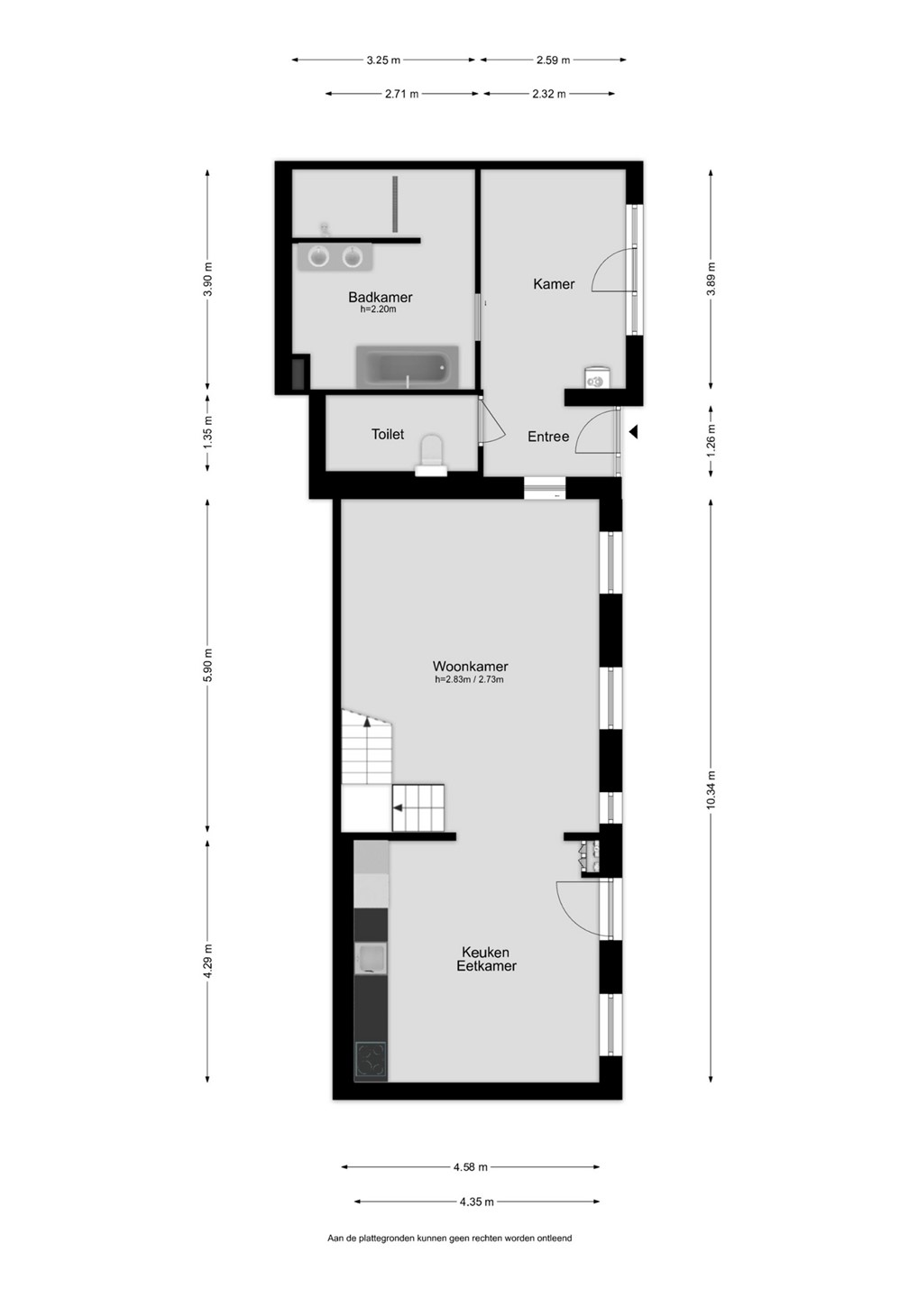
Te koop! Aan de Doniaweg 6 in Burgwerd staat deze luxe geschakelde woning. Deze zeer ruime woning is met oog voor detail afgewerkt. De moderne luxe ruime badkamer beschikt over een ligbad, inloopdouche en dubbele wastafel met meubel. Op de begane grond vindt je verder den stijlvolle open keuken voorzien van diverse inbouwapparatuur en een royale woonkamer met open trap naar de verdieping. Het geheel is voorzien van vloerverwarming. Op de verdieping zijn 2 royale slaapkamers en een dakterras met uitzicht op het doorgaande vaarwater.
Een droomhuis voor iedereen die comfort en stijl zoekt!
Indeling:
Begane grond: Entree, hal, woonkamer met trapopgang naar verdieping, open keuken voorzien van inductiekookplaat, afzuigkap, combi-oven, koelkast vaatwasser, badkamer, bijkeuken.
Eerste verdieping: Overloop, twee royale slaapkamers waarvan één met toegang tot dakterras.
Maak snel een afspraak!
Een droomhuis voor iedereen die comfort en stijl zoekt!
Indeling:
Begane grond: Entree, hal, woonkamer met trapopgang naar verdieping, open keuken voorzien van inductiekookplaat, afzuigkap, combi-oven, koelkast vaatwasser, badkamer, bijkeuken.
Eerste verdieping: Overloop, twee royale slaapkamers waarvan één met toegang tot dakterras.
Maak snel een afspraak!
Kenmerken
| Overdracht | |
|---|---|
| Referentienummer | 00278 |
| Vraagprijs | € 295.000,- k.k. |
| Inrichting | Niet gestoffeerd |
| Inrichting | Niet gemeubileerd |
| Aanvaarding | In overleg |
| Aangeboden sinds | Vrijdag 17 april 2026 |
| Laatste wijziging | Zondag 26 april 2026 |
| Bouw | |
|---|---|
| Type object | Woonhuis, eengezinswoning, geschakelde woning |
| Soort bouw | Bestaande bouw |
| Bouwperiode | 1890 |
| Dakbedekking | Dakpannen |
| Type dak | Zadeldak |
| Isolatievormen | Dakisolatie Dubbel glas Muurisolatie Vloerisolatie Volledig geïsoleerd |
| Oppervlaktes en inhoud | |
|---|---|
| Perceeloppervlakte | 107 m² |
| Woonoppervlakte | 135 m² |
| Inhoud | 505 m³ |
| Oppervlakte gebouwgebonden buitenruimte | 9 m² |
| Indeling | |
|---|---|
| Aantal bouwlagen | 2 |
| Aantal kamers | 4 (waarvan 3 slaapkamers) |
| Aantal badkamers | 1 |
| Locatie | |
|---|---|
| Ligging | Aan rustige weg |
| Energieverbruik | |
|---|---|
| Energielabel | C |
| CV ketel | |
|---|---|
| CV ketel | Nefit |
| Warmtebron | Gas |
| Bouwjaar | 2021 |
| Combiketel | Ja |
| Eigendom | Eigendom |
| Uitrusting | |
|---|---|
| Verwarmingssysteem | Centrale verwarming Vloerverwarming (gedeeltelijk) |
| Badkamervoorzieningen | Inloopdouche Ligbad Vloerverwarming Wastafel Wastafelmeubel |
| Kadastrale gegevens | |
|---|---|
| Kadastrale aanduiding | Burgwerd A 776 |
| Perceeloppervlakte | 107 m² |
| Omvang | Geheel perceel |
| Eigendomsituatie | Eigen grond |
Social
Vind ons leuk op Facebook
LinkedIn webpagina