Verkocht: Vijver 3, 8861 BS Harlingen
€ 289.000,- k.k.
| Type object | Woonhuis, eengezinswoning, vrijstaande woning |
|---|---|
| Woonoppervlakte | 60 m² |
| Status | Verkocht |
| Perceeloppervlakte | 65 m² |
|---|---|
| Aanvaarding | In overleg |
Beschrijving
In het hart van het sfeervolle Harlingen vind je deze charmante vrijstaande woning uit 1891 aan de Vijver 3. Een unieke plek waar rust en reuring samenkomen: gelegen aan een rustig straatje, maar op loopafstand van winkels, restaurants, havens en andere voorzieningen. Deze is woning is perfect voor wie houdt van karakter, comfort en de levendigheid van het stadsleven binnen handbereik. Ideaal als starterswoning, pied-á-terre of voor iemand die klein maar fijn wil wonen.
Mis deze unieke kans niet en kom de sfeer zelf proeven. Neem contact op voor een bezichtiging!
Indeling:
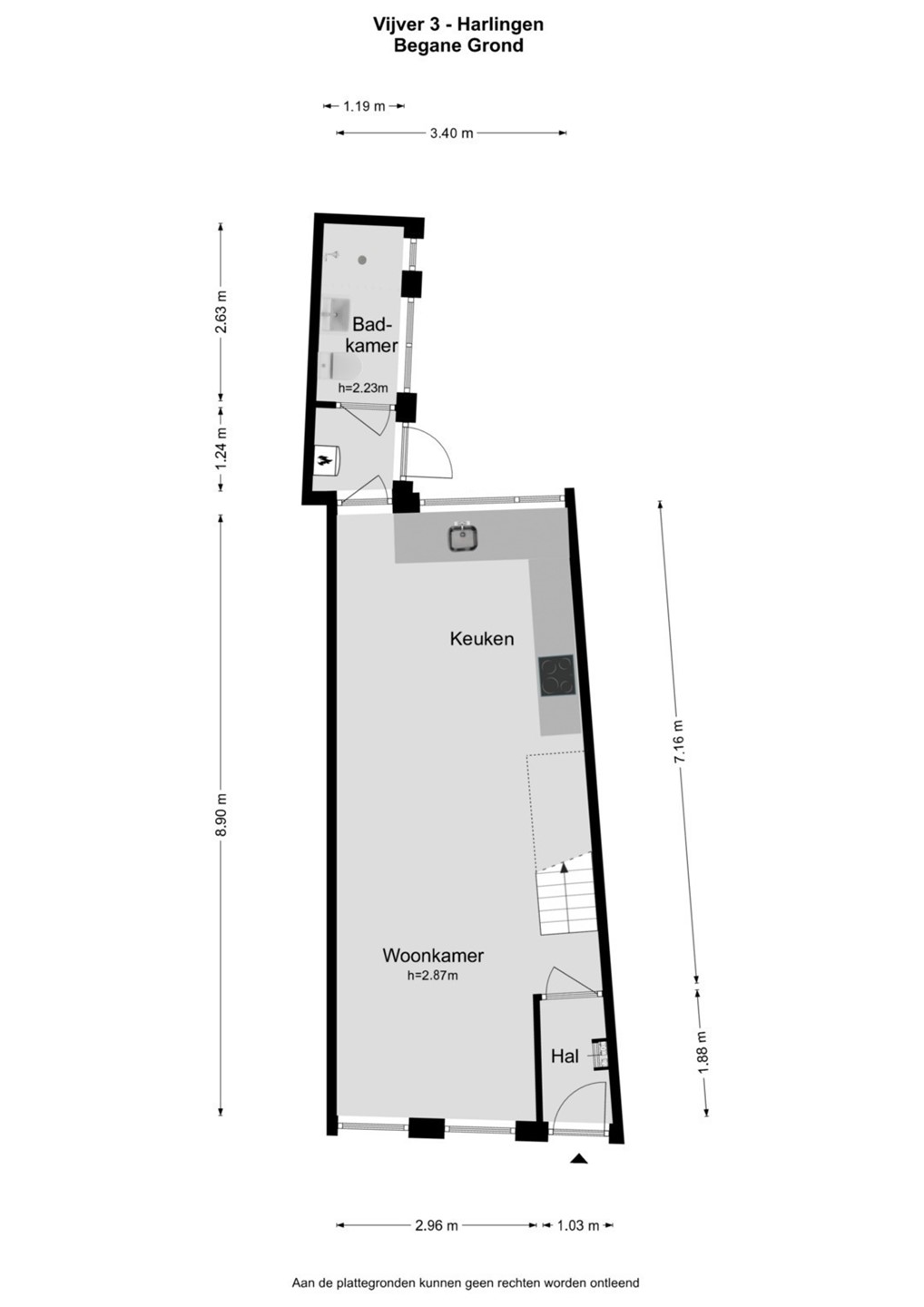
Begane grond: Entree, hal met meterkast, woonkamer, moderne open keuken uit 2023 voorzien van o.a. inductiekookplaat, afzuigkap, koelkast en vaatwasser, bijkeuken met witgoedaansluiting, cv-ruimte, badkamer met instapdouche, toilet en wastafel.
Eerste verdieping: Overloop, twee slaapkamers.
Tweede verdieping: Vliering d.m.v. losse trap bereikbaar.
Mis deze unieke kans niet en kom de sfeer zelf proeven. Neem contact op voor een bezichtiging!
Indeling:
Begane grond: Entree, hal met meterkast, woonkamer, moderne open keuken uit 2023 voorzien van o.a. inductiekookplaat, afzuigkap, koelkast en vaatwasser, bijkeuken met witgoedaansluiting, cv-ruimte, badkamer met instapdouche, toilet en wastafel.
Eerste verdieping: Overloop, twee slaapkamers.
Tweede verdieping: Vliering d.m.v. losse trap bereikbaar.
Bijzonderheden
Het dakbeschot op de zolder is gedekt met asbestplaten.
Woning is gelegen in een gebied dat is aangemerkt als beschermd stadsgezicht.
Nieuwe meterkast en elektra begane grond.
Begane grond opnieuw gestuct.
Wand en plafond geïsoleerd begane grond geïsoleerd.
Woning is gelegen in een gebied dat is aangemerkt als beschermd stadsgezicht.
Nieuwe meterkast en elektra begane grond.
Begane grond opnieuw gestuct.
Wand en plafond geïsoleerd begane grond geïsoleerd.
Kenmerken
| Overdracht | |
|---|---|
| Vraagprijs | € 289.000,- k.k. |
| Inrichting | Niet gestoffeerd |
| Inrichting | Niet gemeubileerd |
| Status | Verkocht |
| Aanvaarding | In overleg |
| Aangeboden sinds | Maandag 26 mei 2025 |
| Laatste wijziging | Maandag 11 augustus 2025 |
| Bouw | |
|---|---|
| Type object | Woonhuis, eengezinswoning, vrijstaande woning |
| Soort bouw | Bestaande bouw |
| Bouwperiode | 1891 |
| Dakbedekking | Dakpannen |
| Type dak | Schilddak |
| Isolatievormen | Dubbel glas |
| Oppervlaktes en inhoud | |
|---|---|
| Perceeloppervlakte | 65 m² |
| Woonoppervlakte | 60 m² |
| Inhoud | 228 m³ |
| Indeling | |
|---|---|
| Aantal bouwlagen | 2 |
| Aantal kamers | 3 (waarvan 2 slaapkamers) |
| Aantal badkamers | 1 |
| Locatie | |
|---|---|
| Ligging | In centrum |
| Energieverbruik | |
|---|---|
| Energielabel | G |
| CV ketel | |
|---|---|
| CV ketel | AWB |
| Warmtebron | Gas |
| Bouwjaar | 2015 |
| Combiketel | Ja |
| Eigendom | Eigendom |
| Uitrusting | |
|---|---|
| Warm water | CV-ketel |
| Verwarmingssysteem | Centrale verwarming |
| Badkamervoorzieningen | Inloopdouche Toilet Wastafelmeubel |
| Kadastrale gegevens | |
|---|---|
| Kadastrale aanduiding | Harlingen A 1227 |
| Perceeloppervlakte | 65 m² |
| Omvang | Geheel perceel |
| Eigendomsituatie | Zie akte |
Social
Vind ons leuk op Facebook
LinkedIn webpagina