Te koop: Oosteinde 10, 9079 LC Sint Jacobiparochie
€ 685.000,- k.k.
| Type object | Woonhuis, herenhuis, vrijstaande woning |
|---|---|
| Woonoppervlakte | 374 m² |
| Perceeloppervlakte | 1.221 m² |
|---|---|
| Aanvaarding | In overleg |
Beschrijving
Bent u op zoek naar een veelzijdige en ruime woning? Deze grote vrijstaande woning biedt talloze mogelijkheden! Met meerdere kamers en aparte appartementen is deze woning perfect voor een combinatie van wonen en werken, verhuur appartementen of Bed & Breakfast. Ook kan de benedenverdieping als bedrijfsruimte worden ingericht.
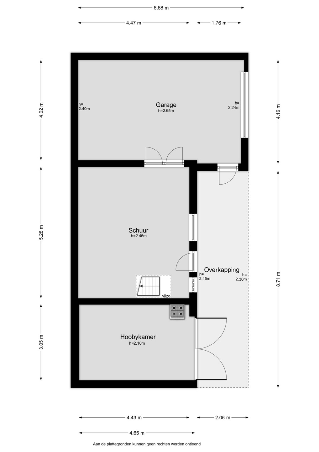
De woning beschikt aan de achterzijde over een groot terrein, inclusief een vrijstaande garage en aparte schuur voor berging. Er is volop ruimte voor diverse toepassingen, dus de mogelijkheden zijn eindeloos.
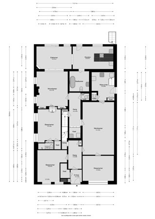
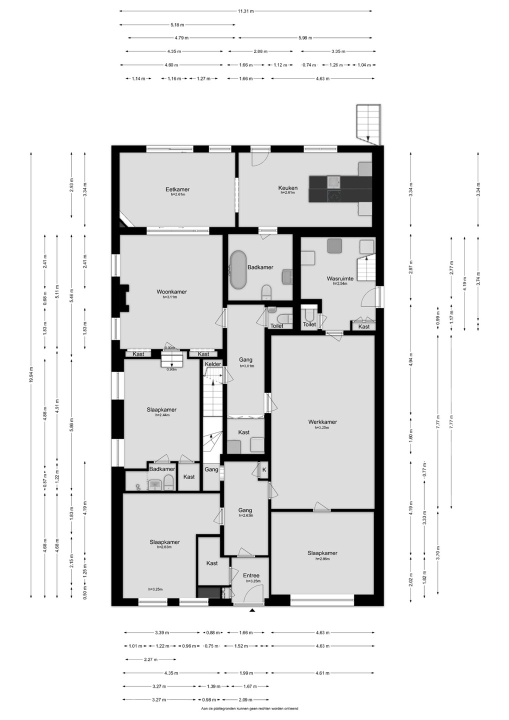
Indeling:
Begane grond: Entree, hal met meterkast, gezelschap of hobbyruimte, twee slaapkamers, toilet, witgoedruimte, cv-ruimte. woonkamer, luxe open keuken voorzien van inductie, afzuigkap, vaatwasser, oven, koelkast, nieuwe badkamer, slaapkamer.
Eerste verdieping: zes slaapkamers en een paar appartementen met eigen keuken en badkamer, en toegang dakterras.
* Veelzijdige woonopties - Riant wonen of combineren met praktijk kantoorruimte, B&B of Kangoeroewoning!
* Splitsbaar in meerdere wooneenheden.
* Ideaal voor gemengd gebruik - Geschikt voor grote gezinnen, mantelzorg met zelfstandige bewoning op begane grond.
* Ruime en luxe afwerking - Moderne woonkeuken, meerdere badkamers, dakterras en groot terrein
Voor meer informatie of een bezichtiging, neem gerust contact met ons op!
De woning beschikt aan de achterzijde over een groot terrein, inclusief een vrijstaande garage en aparte schuur voor berging. Er is volop ruimte voor diverse toepassingen, dus de mogelijkheden zijn eindeloos.
Indeling:
Begane grond: Entree, hal met meterkast, gezelschap of hobbyruimte, twee slaapkamers, toilet, witgoedruimte, cv-ruimte. woonkamer, luxe open keuken voorzien van inductie, afzuigkap, vaatwasser, oven, koelkast, nieuwe badkamer, slaapkamer.
Eerste verdieping: zes slaapkamers en een paar appartementen met eigen keuken en badkamer, en toegang dakterras.
* Veelzijdige woonopties - Riant wonen of combineren met praktijk kantoorruimte, B&B of Kangoeroewoning!
* Splitsbaar in meerdere wooneenheden.
* Ideaal voor gemengd gebruik - Geschikt voor grote gezinnen, mantelzorg met zelfstandige bewoning op begane grond.
* Ruime en luxe afwerking - Moderne woonkeuken, meerdere badkamers, dakterras en groot terrein
Voor meer informatie of een bezichtiging, neem gerust contact met ons op!
Bijzonderheden
Totaal zijn er 9 slaapkamers
Kenmerken
| Overdracht | |
|---|---|
| Referentienummer | 00276 |
| Vraagprijs | € 685.000,- k.k. |
| Inrichting | Niet gestoffeerd |
| Inrichting | Niet gemeubileerd |
| Aanvaarding | In overleg |
| Aangeboden sinds | Donderdag 12 maart 2026 |
| Bouw | |
|---|---|
| Type object | Woonhuis, herenhuis, vrijstaande woning |
| Soort bouw | Bestaande bouw |
| Bouwperiode | 1920 |
| Dakbedekking | Bitumen Dakpannen |
| Type dak | Samengesteld |
| Keurmerken | Brandveiligheid |
| Isolatievormen | Dakisolatie Grotendeels dubbel glas HR-glas Muurisolatie Vloerisolatie |
| Oppervlaktes en inhoud | |
|---|---|
| Perceeloppervlakte | 1.221 m² |
| Woonoppervlakte | 374 m² |
| Inhoud | 1.535 m³ |
| Oppervlakte overige inpandige ruimten | 22 m² |
| Oppervlakte externe bergruimte | 88 m² |
| Oppervlakte gebouwgebonden buitenruimte | 23 m² |
| Indeling | |
|---|---|
| Aantal bouwlagen | 2 |
| Aantal kamers | 9 (waarvan 7 slaapkamers) |
| Aantal badkamers | 1 |
| Energieverbruik | |
|---|---|
| Energielabel | B |
| CV ketel | |
|---|---|
| CV ketel | Intergas |
| Warmtebron | Gas |
| Bouwjaar | 2022 |
| Combiketel | Ja |
| Eigendom | Eigendom |
| Uitrusting | |
|---|---|
| Warm water | CV-ketel |
| Verwarmingssysteem | Centrale verwarming Pelletkachel |
| Parkeergelegenheid | Vrijstaande stenen garage |
| Heeft een garage | Ja |
| Kadastrale gegevens | |
|---|---|
| Kadastrale aanduiding | Waadhoeke A 2595 |
| Perceeloppervlakte | 1.221 m² |
| Omvang | Geheel perceel |
| Eigendomsituatie | Eigen grond |
Social
Vind ons leuk op Facebook
LinkedIn webpagina